Compass Fit in-ground swim spa now available to test at our HQ.
how to install a pool

How to Build a Swimming Pool – Step by Step

Installing an inground pool with the help of an expert can be quick and easy. Discover the process of our pool installations with this pictorial guide of a JAVA pool installation.

 

Swimming Pool Construction and Installation

We have over 30 years of experience installing pools in a variety of homes, which we bring to every installation. Our Compass Ceramic Pools are constructed in two main ways, with flat or sloped bottoms, each sometimes requiring a slightly different approach.

When installing a pool with a sloped bottom the process involves putting a gravel bed in place both under and around the pool. This subsoil is made up of river pebbles, which are round in shape, and typically measure between 8 and 16 mm in diameter.

Pools with flat bottoms can be installed on a concrete base plate but this isn’t always necessary. Once we have settled the concrete base, the sides are filled up with more concrete to lock your new swimming pool in place.

Below we have a pictorial guide of the installation process of one of our JAVA pools, complete with a sliding roof system.

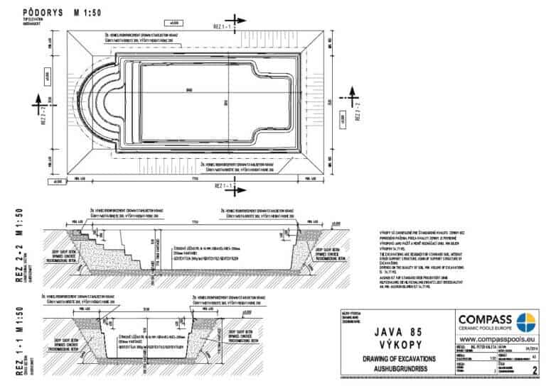
1. Complete manual and construction drawings

When choosing to install a Compass Ceramic Pool, you will receive a detailed blueprint and manual for your nearest company pool builder. Our drawings come equipped with measurements and explanations of what you can expect from the excavation process.

Outdoor Pool Sections Pdf download

Excavation plan of Java 85 Java pool excavation plan pdf

2. Excavations

The excavation process begins once the construction team has taken careful measurements of the pool area. After the outlines are in place it’s time for the exciting work to begin: making space in your garden for your new pool. We endeavour to ensure the surrounding pool area is left in the same condition as we found it through a careful digging process.

Compass pool construction – excavations An excavator beginning the process of digging a hole Ceramic pool installation – earth works with an excavator An excavator making room for a Compass Pools installation Compass ceramic pool installation - excavation Compass Pools excavation: a work in progress

3. Preparation of the pool subsoil

Once the excavation process has been completed, you will soon start to see the progress of your pool installation accelerate. The next step is the preparation of the pool subsoil, which in this case is a gravel-based option.

This means filling the base area with a subsoil layer of washed round gravel which is poured onto a geotextile fabric and then compacted. In this instance, a gravel bed is sufficient for settling the pool.

Ceramic pool installation – gravel bed Laying a gravel bed for a Compass Pools installation

4. Pool transportation and placing

When the preparations for the pool have been completed it’s time to transport the shell into place. This process involves a crane that will gently position the pool into the right place, allowing the installation crew to get ready for the next steps.

Pool construction – placing the ceramic pool with a crane Hoisting the ceramic pool into the air by crane Pool construction – settling the pool with a crane Getting the pool into position above the excavated hole Compass Pools ceramic pools installation A Compass Pools JAVA pool inserted into place

5. Technology installation and backfilling

Our bespoke one-piece swimming pools are delivered complete and ready for installation with all of your options specified. The backfilling stage is crucial to ensuring that your pool stays in place. At this stage, we also install the technological aspects of your pool system such as the inlet nozzles, skimmer, hoses, pipes and lights.

The pool is gradually backfilled using either a dry concrete mixture or gravel. How we backfill the space around your pool matters. We must simultaneously fill the pool and the gap between its outer layer and the excavated hole. This is to ensure that the pressure being exerted on the walls remains balanced.

No matter which material we use to backfill your pool area, we always use concrete to fill the space under the steps for added stability on entry and exit.

Ceramic pool installation and backfilling by dry concrete mixture Beginning the backfilling process using dry concrete

Ceramic pool installation and back filling by dry concrete mixture:

Filling the JAVA pool with water Filling the JAVA pool with water

Click on the image for further details on Compass Pools installations:

Installations guide PDF image

6. Technology installation in the shaft

Whenever the pool is settling into place it’s time to install the additional technology that allows for its smooth running. This is typically in a designated pool shaft that can be built on-site, or in a room of your choosing such as a garage or basement.

Ceramic pool installation and pool technology shaft Inside the ceramic pool technology area Technology Shaft An overhead view of what a typical pool technology installation looks like

7. Pool roofing

Our customers have the option of installing a retractable roof with their outdoor ceramic pools. This roof requires railing to be installed alongside the pool for quick covering and uncovering.

If they are to be embedded at paving level, these roof rails are settled into the concrete pool ring. However, these roof rails can also be installed after the outer pool tiles are laid if that is preferable.

Settling the rails of pool roofing Settling the ceramic pool roof rails in concrete

8. Tiling around the pool

Depending on how you wish your Compass Ceramic Pool to be finished, your installation may require tiles to be laid around the perimeter.

Once your pool has been installed we will then make the finishing touches that you would like. This may be tiles, but we can also provide decking or paving if it is to your liking. We will work with you to ensure you’re left with a pool that you truly love.

Laying the tiles around the JAVA pool Starting to lay the tiles around the JAVA ceramic pool laying the ceramic edge of the pool Compass Pools installers adding the finishing touches

9. Roofing installation

Space is often at a premium when looking to install a pool in your garden, which is why we offer a retractable roof installation service. Our roofs can be slid into place to cover your pool and protect it from the elements when not in use. Then, they simply slide out of the way to give you access to your Compass ceramic pool.

construction with roofing Our retractable pool roof installation in position Landscaping works in the surrounding The pool’s construction makes an impression on the landscape Completed JAVA 85 ceramic pool installation Overhead view of our Compass Pools JAVA installation with a retracted roof

10. It´s done…

The installation process is complete and the only thing left to do is to enjoy your new Compass Ceramic Pool. Thanks to our one-piece pool installation technique, projects normally take between 4 and 6 weeks to complete. This is a faster approach than standard concrete pools, allowing for much less disruption.

Completed JAVA 85 ceramic pool installation - ready to swim The final result of a Compass Pools JAVA installation

See how the pool is moved from the street to the construction site.

Written By: Alex Kemsley
0333 4567 111 Find a Pool Builder Free Brochure Cost Calculator

I am interested in:
How to Build a Swimming Pool – Step by Step

Building a pool?

Don't go without your brochure

To learn more about our services, we will send you a free copy of our latest brochure.